SISTEMA ALU-SET PANORÁMICA
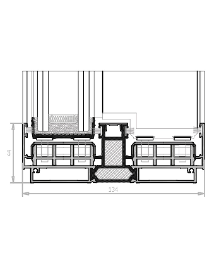
El sistema ALU-SET Corredera ofrece una solución elegante y moderna para tus espacios interiores. Se trata de un sistema de ventana corredera con rotura de puente térmico, de estética recta que incorpora un nudo central minimalista de tan solo 25 mm de sección vista, nudo lateral de corte recto.
Utilizamos la tecnología más innovadora para crear un diseño ligero y duradero. La sutileza de la perfilería de aluminio hace que el chasis sea invisible ocultando el marco en el suelo. La corredera más elegante y vanguardista del mercado.
Aperturas
- Corredera de 2 Hojas
- Corredera de 3 Hojas
- Corredera de 4 Hojas
- Corredera de 6 Hojas
- CorrederaTricarril
| Características | ||
|---|---|---|
| Hueco máximo de acristalamiento | 38 mm | |
| Secciones | ||
| Marco | 134 mm | |
| Hoja | 49 mm | |
| Espesor perfileria | 1,7 mm | |
| Longitud varilla poliamida | ||
| Marco | 37 mm | |
| Hoja de ruedas | 19 mm | |
| Hoja lateral | SD | |
| Dimensiones máximas | ||
| Ancho (L) = | SD | |
| Alto (H) = | SD | |
| Peso máximo/hoja | 750 kg | |
| Especificaciones | ||
|---|---|---|
| Resistencia a la carga del viento | C5 | |
| Permeabilidad del aire | Clase 3 | |
| Estanqueidad del agua | 7A | |
| Sustancias peligrosas | NPD | |
| Capacidad de soporte de carga de los dispositivos de seguridad | APTO | |
| Prestaciones acústicas | 40 dB | |
| Transmitancia térmica (Uw) | desde 1,6 W/m2K | |